CASA FM07
Tipo: Reforma vivienda unifamiliar entre medianeras
Ubicación: Arenys de Munt
Año: 2023
Superfície útil: 201 m2
Piezas: Edificación principal
Estado: En construcción
Ubicación: Arenys de Munt
Año: 2023
Superfície útil: 201 m2
Piezas: Edificación principal
Estado: En construcción
El Proyecto prevé la reforma y una pequeña ampliación de la edificación y derribar los volúmenes de
las construcciones destinadas a cocina, baño y balcón. - derribo de la zona destinada a cocina y cámara
higiénica. Con una superficie total de derribo de 20,81m² (incluyendo también el balcón contado al 50%)
- pequeña ampliación de la vivienda hasta agotar la profundidad edificable en planta baja (ampliación de 5,97m²).
De acuerdo a las normativas vigentes el proyecto contempla los siguientes puntos: - La construcción es existente
y previa al planeamiento municipal urbanístico vigente. - El gordo de la intervención es la reforma de la edificación,
con la intención de mantener y recuperar al máximo la casa de cuerpo original adecuándola al máximo posible a
las condiciones de habitabilidad exigibles hoy. - Se propone una pequeña ampliación de la edificación hasta agotar
la profundidad edificable en planta baja. - La profundidad edificable en planta primera es de 15m, - La profundidad
edificable en planta baja para uso residencial es de 1 5+3m= 18m. - Altura máxima de 10m y un tope de 3 plantas (PB+2).
El proyecto no contempla ampliar en altura. La construcción existente tiene una altura de 7,25m, la cual se mantiene.
- La volumetría existente que sobrepasa la profundidad edificable definida en el planeamiento vigente en planta primera
se mantiene y se prevé realizar tareas de mantenimiento y mejora de las condiciones de aislamiento térmico.
En resumen, la superficie construida total inicial es de 201,87m² y resulta después de la intervención una superficie
construida total de 187,03m².
las construcciones destinadas a cocina, baño y balcón. - derribo de la zona destinada a cocina y cámara
higiénica. Con una superficie total de derribo de 20,81m² (incluyendo también el balcón contado al 50%)
- pequeña ampliación de la vivienda hasta agotar la profundidad edificable en planta baja (ampliación de 5,97m²).
De acuerdo a las normativas vigentes el proyecto contempla los siguientes puntos: - La construcción es existente
y previa al planeamiento municipal urbanístico vigente. - El gordo de la intervención es la reforma de la edificación,
con la intención de mantener y recuperar al máximo la casa de cuerpo original adecuándola al máximo posible a
las condiciones de habitabilidad exigibles hoy. - Se propone una pequeña ampliación de la edificación hasta agotar
la profundidad edificable en planta baja. - La profundidad edificable en planta primera es de 15m, - La profundidad
edificable en planta baja para uso residencial es de 1 5+3m= 18m. - Altura máxima de 10m y un tope de 3 plantas (PB+2).
El proyecto no contempla ampliar en altura. La construcción existente tiene una altura de 7,25m, la cual se mantiene.
- La volumetría existente que sobrepasa la profundidad edificable definida en el planeamiento vigente en planta primera
se mantiene y se prevé realizar tareas de mantenimiento y mejora de las condiciones de aislamiento térmico.
En resumen, la superficie construida total inicial es de 201,87m² y resulta después de la intervención una superficie
construida total de 187,03m².
En planta baja se distribuyen un porche de entrada, la sala de estar, un pequeño trastero aprovechando
el espacio de bajo-escalera, una cámara higiénica, la escalera de acceso a la planta primera, una estancia
interior destinada a sala de juegos y un espacio común de cocina y comedor con salida al patio de parcela.
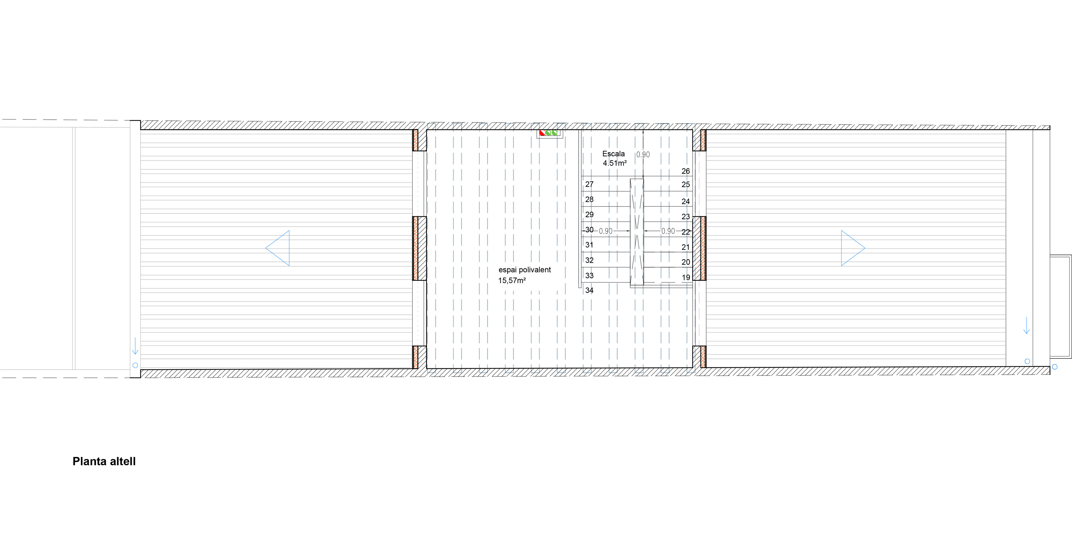
En planta primera se distribuyen un distribuidor que da acceso para la banda de la riera a la habitación
principal con una cámara higiénica y un vestidor integrado en la habitación; en la zona central de la planta
se plantea seguir la escalera principal para acceder al altillo y conseguir así también una entrada de luz en
la zona central de la casa a través de la escalera, también encontramos un armario donde ubicar la lavadora,
una reserva de espacio para secadora y la unidad interior de aerotermia con acumulación de ACS y el acceso
a la cámara higiénica de uso común; y ya hacia la fachada del patio interior se distribuyen dos habitaciones
con salida a una terraza, la que servirá de espacio de tendido de ropa y albergará la unidad exterior de aerotermia.


.png)
.png)
.png)
.png)
.png)

.jpg)
.jpg)
.jpg)
.jpg)
.jpg)
.jpg)
.jpg)
.jpg)
.jpg)
.jpg)
.jpg)
![[...]](https://www.vbtarquitecte.com/xtra/imgs/loading.gif)